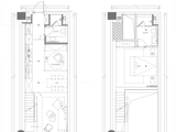
对购房者提供买房交流,购房咨询,解答房产政策,分享海南房价相关信息等,无论任何购房信息,我们将有专业客服即时解答。项目基础信息占地面积:约108亩入户挑空:旋转楼梯增加尊贵感约体验感对购房者提供买房交流,购房…
品牌开发:北京城建品牌以国企实力开发海景墅质洋房,大开间横厅设计,奢享IMAX巨幕海景,驭领红塘,大雅盛放;标准洋房产品(C2)132㎡宽境横厅优雅有序向海而生户型图是对户型结构功能布局的示意,所标尺寸仅供客…
海棠湾•云境,海南三亚,藏国岸-隐云海-海棠一墅。项目以“云境”为核心理念,建筑上规划了六大特色主题空间。对购房者提供买房交流,购房咨询,解答房产政策,分享海南房价相关信息等,无论任何购房信息,我们将有专业客…
海南·三亚·海棠湾,创新驱动的全球家庭消费产业集团,创立于1992年,复星持续深耕健康、快乐、富足、智造四大业务板块,为全球家庭客户提供高品质的产品和服务。复星旗下,全球首个“超级地中海”项目,规划建设顶豪住…
02抱坡新城:不止三亚枢核更是重心⭐️三亚发展新城市核:抱坡新城是三亚以“国际化、生态化、宜居化”为方向打造的新要地,定位为集自贸创新、城市服务、政务服务和生态宜居于一体的城市综合组团,规划范围为944.34…
如今,三亚永基房地产开发有限公司携手匠心之作——天正三亚湾壹号,再次刷新了海岛高端住宅的新标准。天正三亚湾壹号,坐落于三亚湾核心区域,占地面积约56亩,建筑面积约128391平方米,是专为追求高品质生活的您量…
招商·林屿间(海南三亚招商林屿间):以南低北高的建筑布局,规划424户纯板式自在阔景藏品,纳藏亲海惬意与通海公园绿意鲜氧,写就返璞、自在、松弛、栖心、悦己的从容生活,为三亚敬献度假序列作品。【三亚崖州科技城海…
对购房者提供买房交流,购房咨询,解答房产政策,分享海南房价相关信息等,无论任何购房信息,我们将有专业客服即时解答。项目基础信息占地面积:约108亩入户挑空:旋转楼梯增加尊贵感约体验感对购房者提供买房交流,购房…
海南盛达建设工程集团成立于1998年,26年来一直和海南的发展同频共振。这么多年来,集团打造了众多优质项目,像泉州盛达花园、海口盛达嘉苑等。户型图是对户型结构功能布局的示意,所标尺寸仅供客户参考,不作为交付标…
对购房者提供买房交流,购房咨询,解答房产政策,分享海南房价相关信息等,无论任何购房信息,我们将有专业客服即时解答。文章图片来源于微信搜索或百度搜索引擎,我方非相关图片的原创作者,也不对相关图片及内容享有任何权…